Bookarcho Official
common architecture
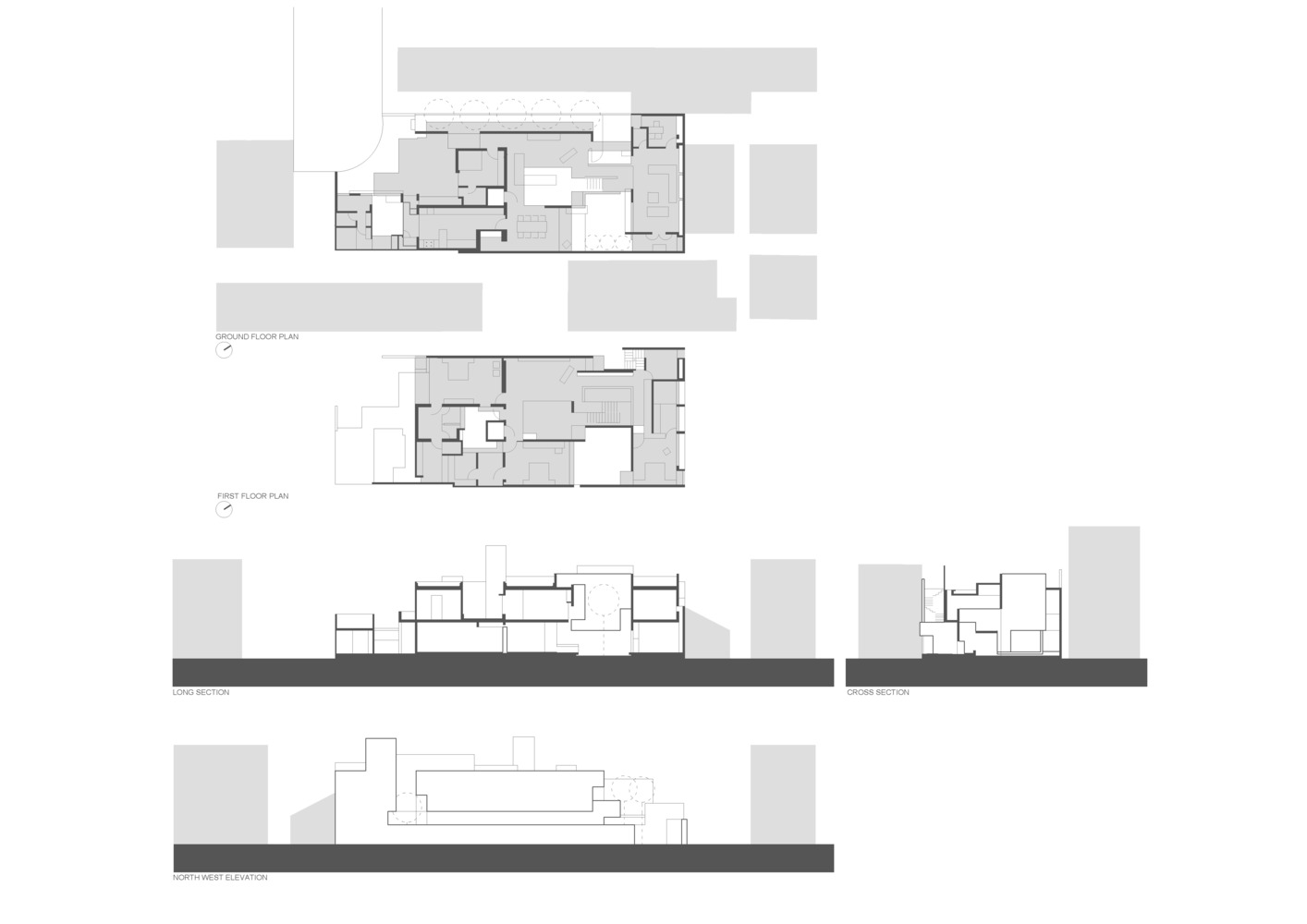
The President Valdas Adamkus Athletics Arena in Kaunas, Lithuania, extends the existing Dariaus and Girėno Stadium complex, forming a cohesive athletics campus for high-performance sport, community use, and long-term resilience. Designed by Lithuanian studio ARCHAS, the new indoor arena consolidates competition and training facilities within a compact, efficient envelope that responds to the site’s spatial constraints and the environmental ambitions of the original design competition.
Interior
The President Valdas Adamkus Athletics Arena in Kaunas, Lithuania, extends the existing Dariaus and Girėno Stadium complex, forming a cohesive athletics campus for high-performance sport, community use, and long-term resilience. Designed by Lithuanian studio ARCHAS, the new indoor arena consolidates competition and training facilities within a compact, efficient envelope that responds to the site’s spatial constraints and the environmental ambitions of the original design competition.
minimalist
The President Valdas Adamkus Athletics Arena in Kaunas, Lithuania, extends the existing Dariaus and Girėno Stadium complex, forming a cohesive athletics campus for high-performance sport, community use, and long-term resilience. Designed by Lithuanian studio ARCHAS, the new indoor arena consolidates competition and training facilities within a compact, efficient envelope that responds to the site’s spatial constraints and the environmental ambitions of the original design competition. The President Valdas Adamkus Athletics Arena in Kaunas, Lithuania, extends the existing Dariaus and Girėno Stadium complex, forming a cohesive athletics campus for high-performance sport, community use, and long-term resilience. Designed by Lithuanian studio ARCHAS, the new indoor arena consolidates competition and training facilities within a compact, efficient envelope that responds to the site’s spatial constraints and the environmental ambitions of the original design competition.